By Jon Sullivan Rice | Red Rock News
Rainbow Trailer Park residents are facing the loss of their homes in Oak Creek Canyon north of Sedona.
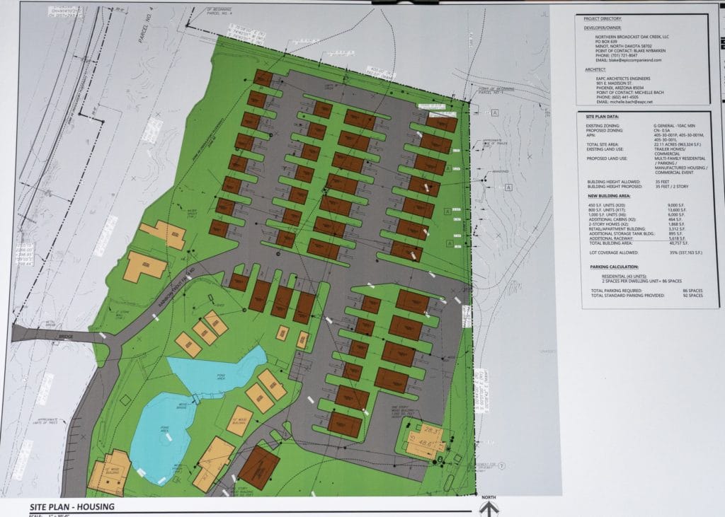
At a neighborhood meeting on Wednesday, Aug. 17, at the Rainbow Trout Farm, Michelle Bach, designer and planner with EAPC Architects Engineers, of Phoenix discussed the rezoning of the three parcels totaling 22.11 acres, and reducing the number of residences from about 80 trailers to 43 manufactured homes. The parcels include the Rainbow Trout Farm, Rainbow Trailer Park and Living Springs Camp.
Bach was leading the meeting on behalf of the property owner of Rainbow Trout Farm: Northern Broadcast Oak Creek, LLC, owned by Cady Gokey, Lydia Bishop Gokey and EPC Exchange Corp., out of Seattle, Wash.





