By Monica D. Spencer | InMaricopa
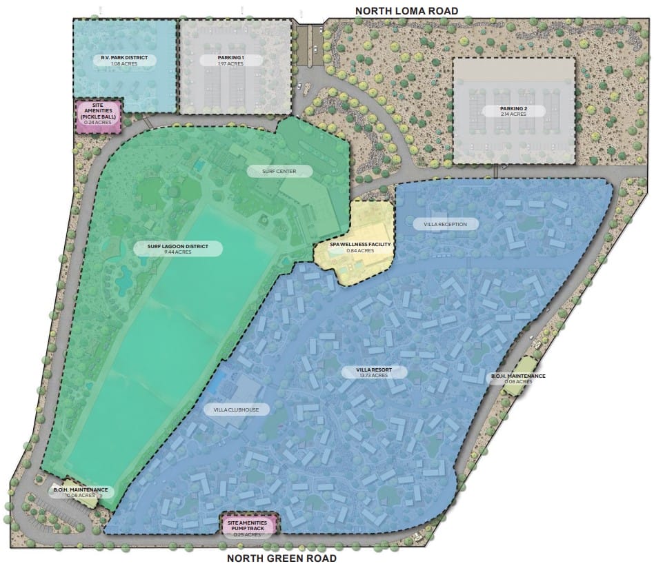
PHX Surf, which has been quiet publicly for months about its plan to build a huge water park in Maricopa, has submitted updated, though downsized, plans to Maricopa’s Development Services Department.
Among changes featured in its pre-application paperwork is a size reduction, which includes scaling back to one surf pool from two. The park now is proposed for 9.44 acres.
Other changes in the updated plan eliminate a lazy river and water slides as well as an outdoor music venue.
The entire development, still regarded by the city as a quality project, is expected to include housing, lodging and retail space. It was first announced in May 2021, to sit between Loma and Green roads at Garvey Avenue.





