By Terrance Thornton | Digital Free Press
Paradise Valley Town Council was presented the latest development preparations afoot at the Andaz Scottsdale Resort & Bungalows during an April 27 work study discussion where local leaders are lockstep on two general ideas as municipal negotiations unfold.
The elected leaders of the Town of Paradise Valley all say they are grateful for the investment being made at the Andaz Scottsdale Resort & Bungalows commercial property but existing proposals do not meet local development standards in certain instances.
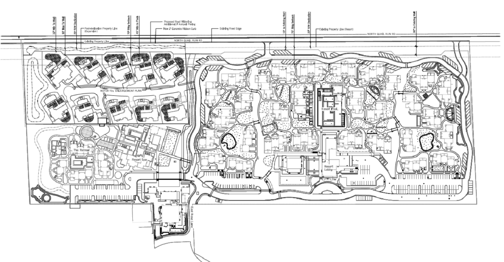
What is pursued by the owner of the property — Gary Stougaard, principal of PV Hotel Venture SPE LLC — is an intermediate special use permit allowing for 10 luxury single-story guest units approximately 2,853 square feet to 5,410 square feet with private pools on a 5-acre plot of land found along Quail Run Road.
The zoning in the Town of Paradise Valley is relatively simple as the majority of the dirt is zoned residential meanwhile a handful of commercial properties exist — resorts, houses of worship and educational entities — and are regulated through what locals call “The Special Use Permit.”
Town officials report the 5-acre plot of land in question carries a residential zoning component and found part of the Andaz Scottsdale Resort campus, which is 22 acres and accessible from Scottsdale Road.
“My concerns are the same they were at the beginning, but it is a great project and Andaz has done a great job thus far on their design and implementation of the hotel,” Paradise Valley Vice Mayor Scott Moore said during the work study discussion.
Town Council deliberations revolve primarily around noise and what are the right design considerations to mitigate noise that could impact the surrounding neighbors who surround the resort property.


