By Monica D. Spencer | InMaricopa
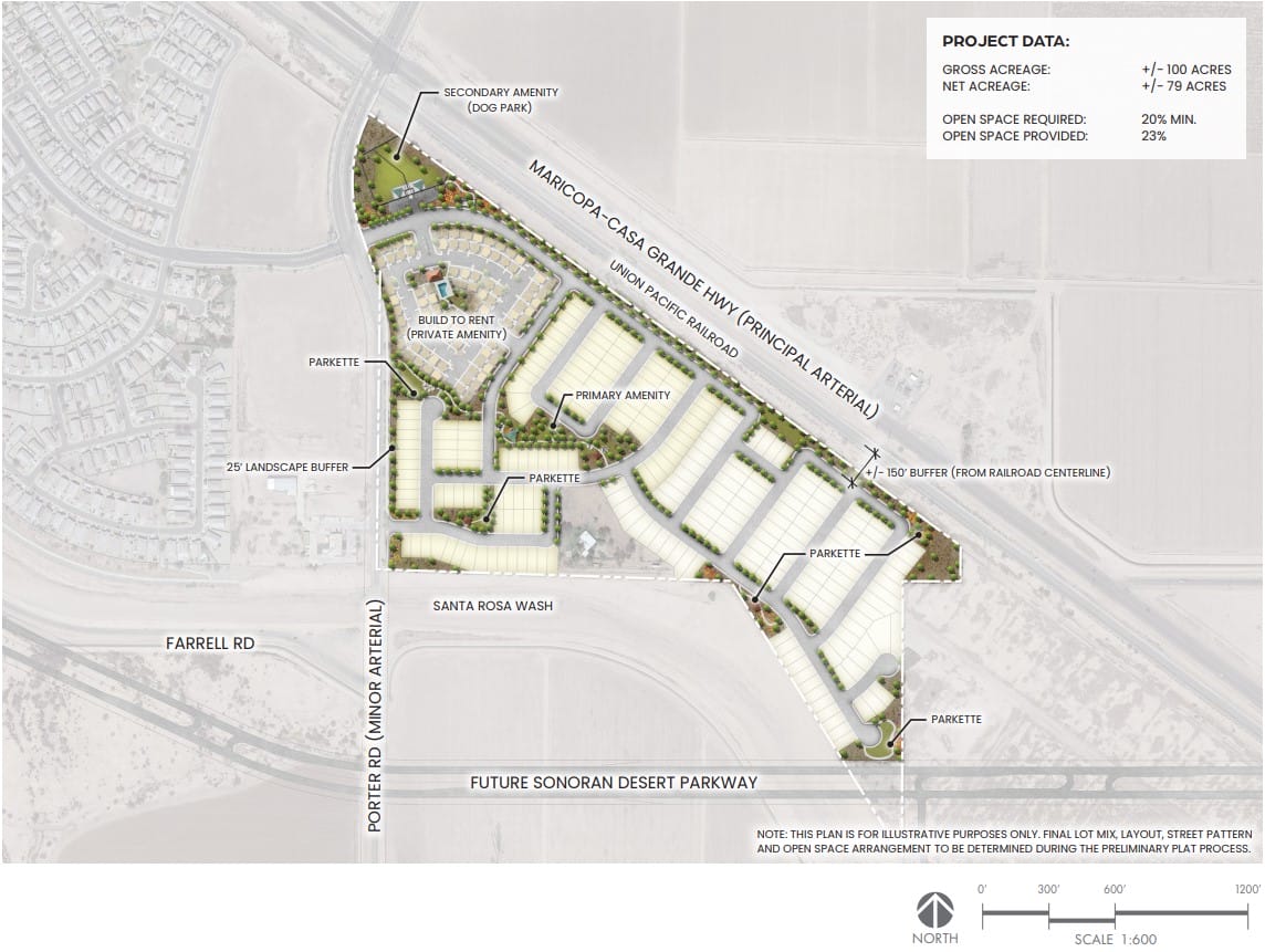
Developers took another small step to seeing the future Kelly Ranch residential community come to life. Maricopa Planning & Zoning Commission unanimously approved rezoning approximately 100 acres of land for planned area development in Kelly Ranch at its May 22 meeting.
The area, on the southeastern corner of Porter Road and Maricopa-Casa Grande Highway, will feature a mixture of medium-density and multiple-unit residential zoning.
This flexible zoning designation will allow developers to build approximately 337 dwelling units, all surrounding the existing Kelly family ranch. This will comprise of 240 single-family homes and 96 bungalow-style rental units.
The development around the ranch is expected to occur in three phases. The rental community will be constructed first, followed by two phases of single-family homes. Amenities may include a dog park or sports field and multiple small parks, as well as private amenities for the rental community.





