(City of Phoenix)
By Ahwatukee Foothills News
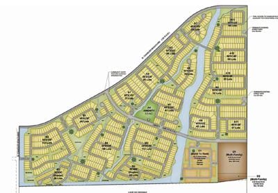
Though the start of construction has yet to be announced, the massive Upper Canyon Development on 373 acres in western Ahwatukee is taking shape in plans the developers have submitted so far to the city.
Phoenix Planning and Development Department documents obtained by the Ahwatukee Foothills News through a state records law request show how the overall development is being planned by land owner Blandford Homes and its subsidiary, Reserve 100 LLC, together with homebuilder D.R. Horton.
When it is done, Upper Canyon will comprise 1,050 detached single-family houses, 150 rental townhomes and a 328-unit apartment complex on former State Trust Land along Chandler Boulevard between 19th and 27th avenues.
Blandford won a state Land Department auction for the property with a $175.5 million bid that it is not scheduled to finish paying until 2029, according to state records obtained by AFN.





