Photo via City of Casa Grande
By Jodie Newell | Pinal Central
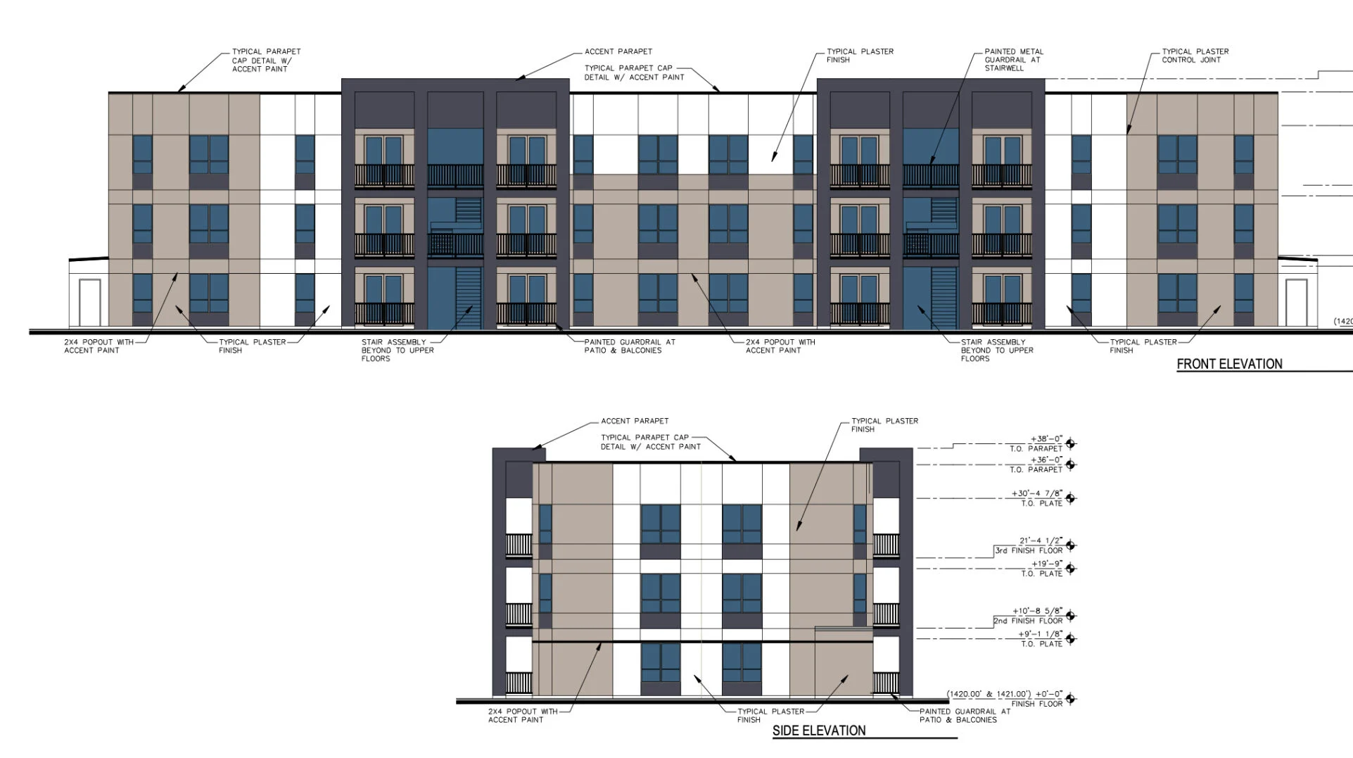
CASA GRANDE — The city Planning and Zoning Commission denied a major site plan for Casa Grande Commons Apartment Homes at Thursday’s meeting.
The three-story, 336-apartment complex was to be built on 15 acres at 1400 N. Promenade Parkway, just north of the Promenade at Casa Grande. Commissioners Cortez Smith, Chris Hubbard and Vice Chair Celeste Garza voted against the request and Chairman Brett Benedict and Garrett Aldrete voted in favor.
All three who voted against the request cited concerns about road infrastructure and the possibility of increased traffic, particularly at the nearby intersection of Cottonwood Lane and Mission Parkway, which is a two-lane road. That intersection was a key topic during a City Council study session last week about either building a roundabout or installing a traffic signal to alleviate traffic.





