By Monica D. Spencer | InMaricopa
The ball is rolling on a new family entertainment center slated for a coveted spot next to Copper Sky.
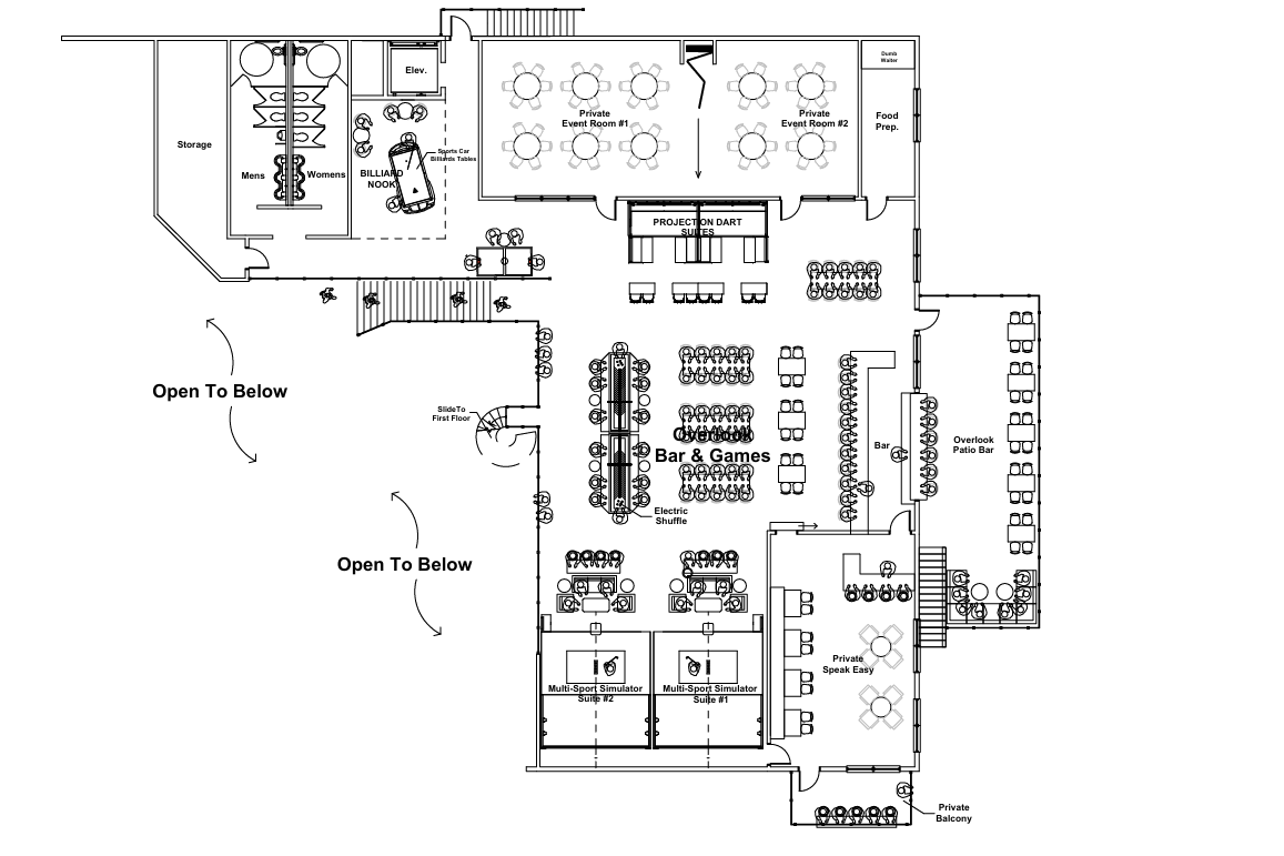
Site and building plans obtained by InMaricopa provide a clearer picture of the upcoming Maricopa Entertainment Center. The initial phase would cover about 3 acres and include roughly 24,500 square feet of indoor space, with a 16,500-square-foot building footprint.
The indoor-outdoor family center is the brainchild of Scott Bartle, a former Maricopa resident who first expressed interest in building the center last year. He purchased the 7.2-acre property in November.








