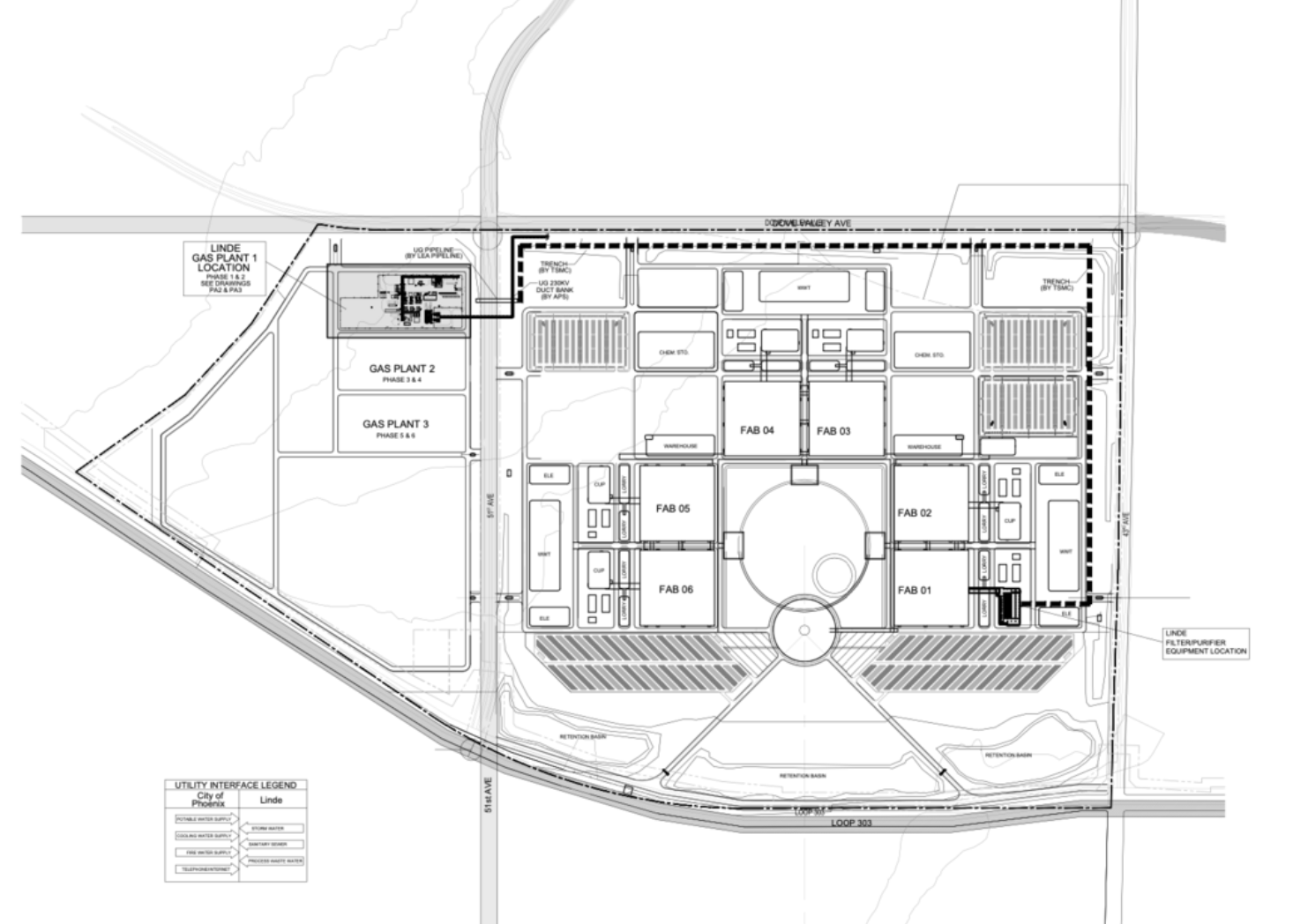
A preliminary site plan shows the layout of Linde Inc.’s proposed gas plant to support the Taiwan Semiconductor Manufacturing Co. facility in north Phoenix. (City of Phoenix)
By Audrey Jensen | Phoenix Business Journal
Major industrial gas company Linde PLC (NYSE: LIN) is planning to invest $600 million for a plant to support the massive Taiwan Semiconductor Manufacturing Co. facility in Phoenix.
Last fall, the company announced it had signed a long-term deal with TSMC for the supply of industrial gases to the $12 billion manufacturing facility in north Phoenix generally located on the southwest corner of 43rd Avenue and Dove Valley Road.
Read the full subscription story from the Phoenix Business Journal.





