Rep. Andy Biggs wants to block Manhattan prosecution of Donald Trump
Rep. Andy Biggs, R-Ariz. opening day of the 118th Congress || Bio data/U. S. House By Ryan Randazzo || The Arizona Republic Rep. Andy Biggs
Rep. Andy Biggs, R-Ariz. opening day of the 118th Congress || Bio data/U. S. House By Ryan Randazzo || The Arizona Republic Rep. Andy Biggs
Wikipedia (modified) By Ray Stern || The Arizona Republic Republicans in the Arizona House of Representatives are down one member following the expulsion of Rep.

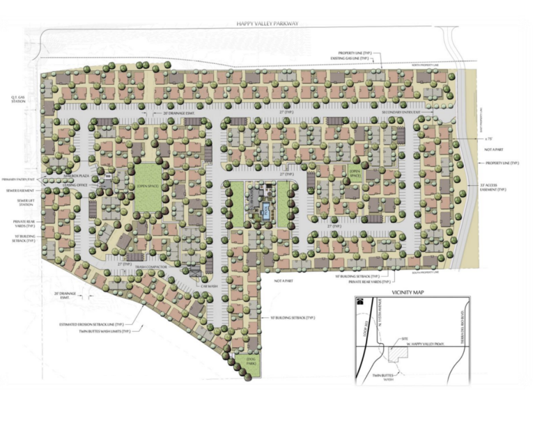
(Disclosure: Rose Law Group represents Empire Group.) By Real Estate Daily News Scottsdale-based developer, Empire Group of Companies recently broke ground and construction is now

(Disclosure: Rose Law Group represents Atlas Global Development.) By Shawn White | Tribune News NowThis month’s Good Morning Winslow networking event was hosted by Atlas

(Disclosure: Rose Law Group represents Highgate.) By MacKenzie Brower | YourValley Paradise Valley Planning Commission has been provided with additional information on Scottsdale Plaza Resort’s intermediate special use permit amendment to redevelop

By Michael Maresh | Pinal Central Citing financial concerns and what it would mean to the city and its residents, the Coolidge City Council on Monday tabled a decision on a manufactured home community project moving forward

Photo via Ryan Cos. By Audrey Jensen | Phoenix Business Journal Ryan Cos. is proposing a new build-to-suit industrial park in Pinal County. A new industrial park by Minnesota-based Ryan Cos. will add to the growing

By AZRE Premier design-build firm LGE Design Build (LGE), in partnership with Clarius Partners, announced today the completion of phase one of construction at Chandler Airpark Technology Center, a 26.29-acre industrial

By Scott Shumaker | East Valley Tribune When former District 6 Council member Kevin Thompson termed out from City Council and was elected to the

An early concept sketch for the Cultural Park’s amphitheater, showing a conventional stage house similar to that at Red Rocks in Denver, rather than the

(Photo by Marcelo Lagos) By Katherine Clark | Wall Street Journal “Welcome to my living room,” said actress Sarah Paulson as she led a tour

By Fox10 Phoenix NASA has created a 3D-printed habitat to simulate what it would be like for humans to live on Mars. On Tuesday, NASA

Mayor Kat Gallego warned that Phoenix will have to tap into its groundwater supply temporarily, || Gage Skidmore By Taylor Seely || The Arizona Republic
Rose Law Group pc values “outrageous client service.” We pride ourselves on hyper-responsiveness to our clients’ needs and an extraordinary record of success in achieving our clients’ goals. We know we get results and our list of outstanding clients speaks to the quality of our work.

By Jakob Thorington | State Affairs A Democratic primary battle in Tucson is taking shape after two state legislative candidates joined a growing wing of

By Jordan Gerard, Jakob Thorington | State Affairs With a budget on the horizon and most legislative bills either dead, signed, vetoed or waiting for

Photo via Strata Clean Energy (Disclosure: Rose Law Group represents Strata Clean Energy.) By Chamber Business News As Arizona’s energy landscape undergoes rapid transformation—driven by surging data center