Photo Courtesy of City of Apache Junction
By Richard Dyer | Daily Independent
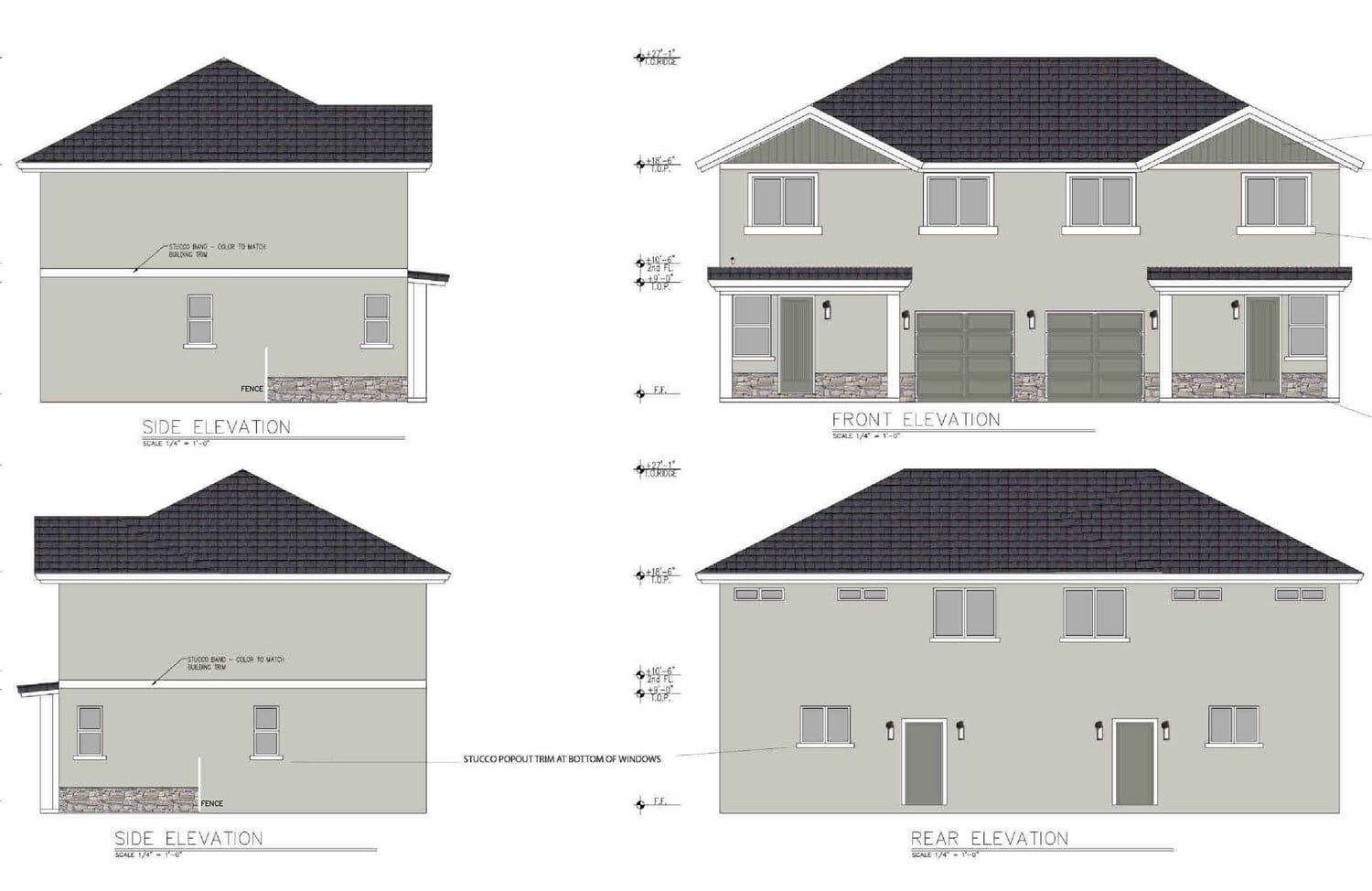
A two-story, 16-unit duplex development is planned for the southwest corner of West Superstition Boulevard and North Plaza Drive in Apache Junction adjacent to Lost Dutchman RV Resort.
The city’s planning and zoning commission on June 27 voted 6-0 to recommend that the Apache Junction City Council approve a rezoning request by John Fox of William Seymour Co. Inc. for approximately .92 net acres. The rezoning is from medium density single-family detached residential to high density multiple-family residential by planned development. Commissioner Frank F. Schoenbeck was absent.
“I think it’s probably perfect for right there, being it’s right next to the RV park. Most — probably 99% of people — wouldn’t build a single house there and live there,” Commissioner Ari Kalan said prior to the vote.





