Photo Courtesy of Axon
By Tom Scanlon | Scottsdale Progress
A biblical battle is brewing in North Scottsdale, where neighbors fear the expansion of a non-deadly weapon maker will kill their tranquility.
Companies around Scottsdale don’t get much bigger than Axon, which expects sales of Taser stun guns and police body cameras of around $1.5 billion this year.
And neighborhoods don’t get much smaller than Stonebrook, a modest 175 homes.
“It feels like David against Goliath,” Susan McGarry, president of Scottsdale Stonebrook II HOA, said with a sigh.
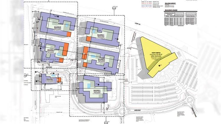
With Axon planning a massive expansion of its Scottsdale footprint, McGarry and 50 of her neighbors attended a June 20 meeting with the company that left them shocked – but hopeful.
They were stunned to hear the Taser-maker now plans not only a previously-disclosed new office building, but also four apartment buildings and a hotel.
Yet McGarry and others left the meeting wobbling but upright, feeling their concerns were acknowledged by Axon representative and attorney Charles Huellmantel, who led the presentation.
“I’m glad they included us at the beginning,” she said, days after the meeting.
Two months later, Axon quietly submitted plans to the city.
When McGarry got a look at the plans, she felt Stonebrook had been bulldozed.





