
Goodyear growth fuels demand for MF
By Litchfield Park/Goodyear Independent Rapid population and job growth in Goodyear is increasing demand for multifamily housing, city officials say, as the West Valley city

By Litchfield Park/Goodyear Independent Rapid population and job growth in Goodyear is increasing demand for multifamily housing, city officials say, as the West Valley city

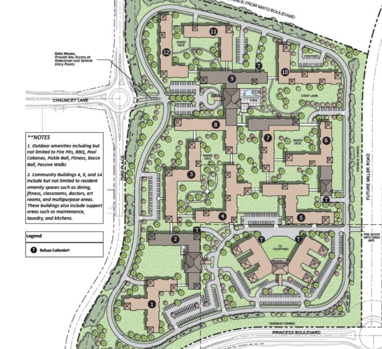
Photo via City of Scottsdale By Scottsdale Independent While it’s early in the process, Erickson Senior Living has its sights set on building a facility

By Scottsdale Independent A leading voice on the housing sector is forecasting the industry will see more of the same in 2026. It’s all about

By Town of Paradise Valley Independent The presence of short-term rentals is not what it used to be in Paradise Valley. In order to have

By Noah Cullen | Pinal Central CASA GRANDE — Jobs in construction and hospitality are expected to increase most over the next decade, experts say,

(Disclosure: Rose Law Group represents Scottsdale Plaza Resort.) By Brandon Brown | Phoenix Business Journal Scottsdale Plaza Resort is being completely renovated and rebranded as
Rose Law Group pc values “outrageous client service.” We pride ourselves on hyper-responsiveness to our clients’ needs and an extraordinary record of success in achieving our clients’ goals. We know we get results and our list of outstanding clients speaks to the quality of our work.

Mayor Freeman highlighted the city’s success on fiscal responsibility, public safety, city-owned solar, and economic development during a period of drastic changes in our local

By Jordan Gerard, Arizona Capitol Times Key Points: After protesters interrupted a church service in Minneapolis in January, Arizona legislators moved to expand protections for

(Disclosure: Rose Law Group represents Century Communities, Meritage Homes, and Taylor Morrison.) By Leah Draffen | Builder Across the latest round of earnings, public builders are showing clear signs that demand is stabilizing,