Photo via City of Scottsdale
By Scottsdale Independent
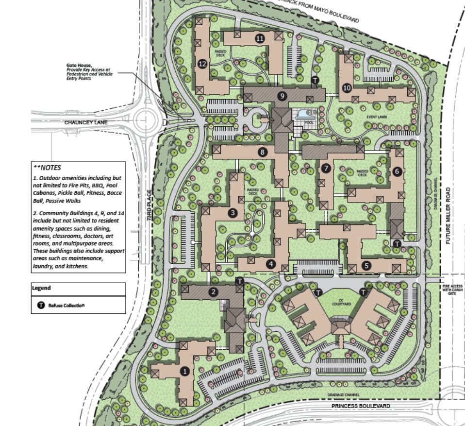
While it’s early in the process, Erickson Senior Living has its sights set on building a facility with 1,150 units near the intersection of North Scottsdale and Princess roads.
The proposal made to the City of Scottsdale calls for 975 independent living units and another 175 units for residents requiring assisted living, memory care or skilled nursing.
The proposal made by the company, which was attached to a zoning district map amendment and conditional use permit request, calls for six-story buildings. However, it’s not clear how many buildings there would be on the 55-acre site, according to Scottsdale Planning and Zoning spokeswoman Kristen Landry.





