
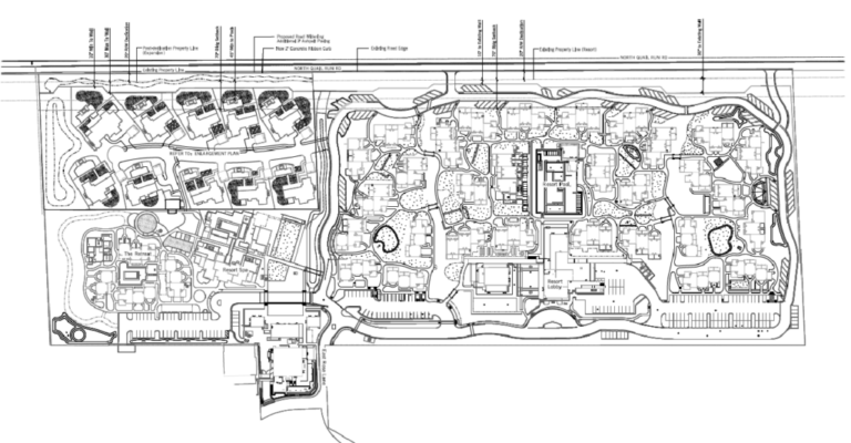
Stillwater Capital breaks ground on Gilbert community
By Jackson Chen | Multi-Housing News Stillwater Capital Investments is expanding its multifamily presence in the Phoenix metro with its latest project. Along with equity partner Rosewood Property Co., Stillwater began




























