
GOP rental tax ban bill introduced, opposed by cities
One of the Republicans’ pillars to reducing housing costs – banning the rental tax – is now filed in the Legislature. Senate President Warren Petersen,

One of the Republicans’ pillars to reducing housing costs – banning the rental tax – is now filed in the Legislature. Senate President Warren Petersen,

(Disclosure: Rose Law Group represents the owner of the Paradise Valley property.) By Madelaine Braggs | Rose Law Group Reporter A once in a lifetime

(Disclosure: Rose Law Group represents CaliberCos.) By AZRE Located a half-block from Mesa City Plaza, Wespac Construction Inc. recently revitalized a classic 22,000 SF vintage

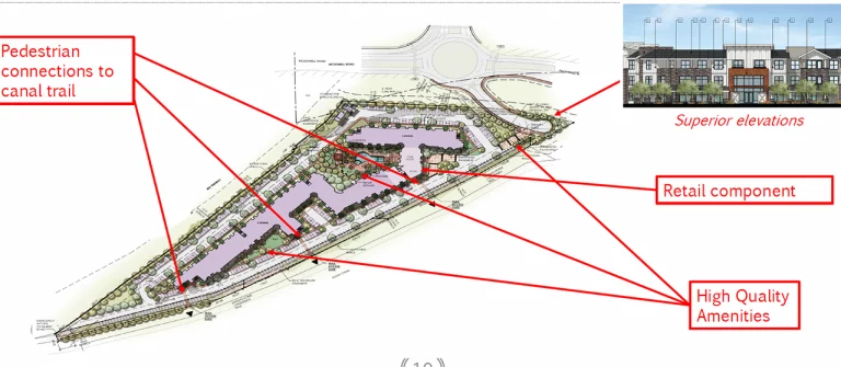
By Digital Free Press Concord Wilshire Capital and TLG Investment Partners — in partnership with Carl DeSantis’ CDS International Holdings Inc. — is announcing the

(City of Mesa) By The Mesa Tribune Many residents of the Lehi community in northwest Mesa cherish an agriculture-based lifestyle within an easy drive from more urban areas. “It’s a

By Catherine Reagor | Arizona Republic Metro Phoenix’s median home price dropped $8,000 in December and is expected to fall another $2,000 in January. The Valley’s overheated housing market abruptly

By Audrey Jensen | Phoenix Business Journal BNSF announces $3.96B capital investment plan for 2023. Fort Worth-based BNSF Railway Co. is moving forward with two massive rail complexes, including one in the Phoenix

By Scott Shumaker | Mesa Tribune Retail giant Costco is planning a 75,000-square-foot warehouse with 25 loading docks on vacant land on the northeast corner of Elliot and Ellsworth

By Mark Moran | East Valley Tribune For the first time in a dozen years, the Queen Creek Town Council has a new mayor and two new members. Julia Wheatley

(PARADISE VALLEY, Ariz.) – Arizona’s Luxury Leader Russ Lyon Sotheby’s International Realty is proud to announce the $12 million sale of 6659 East Indian Bend Road in Paradise Valley, Arizona. Luxury Agents Frank Aazami and Jean-Michel Edery of

By Howard Fischer || Capitol Media Services January 23, 2023 Three current and former Republican lawmakers are hoping to avoid paying the legal fees of

By Kiera Riley || Arizona Capitol Times January 20, 2023 A brigade of strollers and children toting magic marker-adorned posters descended upon the Capitol to

By Sasha Hupka || The Arizona Republic A Maricopa County Superior Court judge won’t force Scottsdale to resume sending water to Rio Verde Foothills, saying

ByTaylor Seely || The Arizona Republic President Joe Biden praised the mayors of Phoenix and Mesa in an address Friday to city leaders from across

Rep. Ruben Gallego, D-Ariz., is running for Independent Sen. Kyrsten Sinema seat, who is up for reelection in November 2024. By Tara Kavaler || The
Rose Law Group pc values “outrageous client service.” We pride ourselves on hyper-responsiveness to our clients’ needs and an extraordinary record of success in achieving our clients’ goals. We know we get results and our list of outstanding clients speaks to the quality of our work.

Mayor Freeman highlighted the city’s success on fiscal responsibility, public safety, city-owned solar, and economic development during a period of drastic changes in our local

By Jordan Gerard, Arizona Capitol Times Key Points: After protesters interrupted a church service in Minneapolis in January, Arizona legislators moved to expand protections for

(Disclosure: Rose Law Group represents Century Communities, Meritage Homes, and Taylor Morrison.) By Leah Draffen | Builder Across the latest round of earnings, public builders are showing clear signs that demand is stabilizing,