
Is Amazon the secret backer of a proposed Valley ‘hazmat’ distribution center?
By Brandon Brown | Phoenix Business Journal The city of Mesa earlier this month received a pre-submittal application for an industrial building that could be

By Brandon Brown | Phoenix Business Journal The city of Mesa earlier this month received a pre-submittal application for an industrial building that could be

Photo via Google Maps By Audrey Jensen | Phoenix Business Journal A real estate investor has acquired nearly 400 acres of land in Coolidge from

Photo Courtesy of Arizona Department of Transportation By Maricopa Association of Governments The Valley has experienced continued growth over the past few decades and shows

Photo Courtesy of City of Chandler By Ken Sain | SanTan Sun News The COVID-19 pandemic changed how America works. Many workers who never considered

By Michael Maresh | Coolidge Examiner Home sales and construction in Coolidge have seen a sharp decline this year. Coolidge Development Services Director Gilbert Lopez

By Dale Brown | Phoenix Business Journal Concerns about Phoenix-area water supplies have been much in the news of late, but the focus has been on outlying

By AZ Big Media Shopoff Realty Investments announced today it has secured unanimous approval from the Mesa City Council for The Block on Elliot, a 270-acre industrial

Photo Courtesy of Concord Wilshire By Corina Vanek | Arizona Republic The redeveloped Metrocenter Mall will add a rooftop park and plaza to a parking

By Catherine Reagor | Arizona Republic Metro Phoenix home prices and sales climbed in May, and both are poised to increase again in June. The

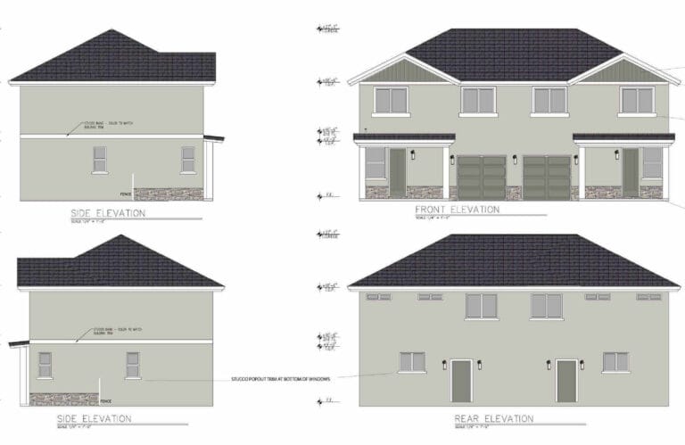
Photo Courtesy of City of Apache Junction By Richard Dyer | Daily Independent A two-story, 16-unit duplex development is planned for the southwest corner of

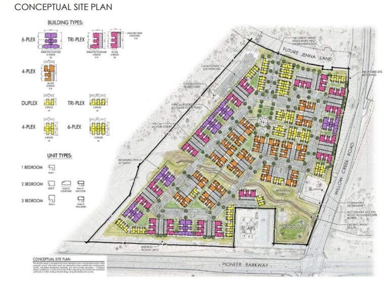
Photo Courtesy of City of Mesa By Richard Dyer | Daily Independent A 180-unit apartment complex is to be constructed east of Mesa Drive and

By Jeff Gifford | Phoenix Business Journal Phoenix Mayor Kate Gallego is the new chair of the Maricopa Association of Governments Regional Council, and she

Photo via Steve Stockmar By Steve Stockmar | Glendale Independent A proposed new hotel in the Arrowhead Towne Center section of Glendale is mobilizing nearby

By AZRE Construction of a Class A, multi-tenant medical office building is underway at One Scottsdale. Ryan Companies US, Inc. is developing, designing, and building One Scottsdale

Photo via City of Tempe By Daily Independent The Tempe City Council voted Tuesday to appoint Rosa Inchausti as city manager. Inchausti, the first female

By Scott Shumaker | The Mesa Tribune In April, the City of Mesa finalized a deal to purchase 9 acres of vacant land at the

By Amy Edelen | Phoenix Business Journal A Scottsdale-based company that makes technology to extract drinking water from the air has partnered with Local First

Photo Courtesy of Real Estate Daily News By Real Estate Daily News The sale of 3.86 acres at the Southwest corner of Tangerine Road and

By Audrey Jensen | Phoenix Business Journal Target, Kohls, Boot Barn and more are bringing new stores to the fast-growing Prasada shopping centers in Surprise

By Audrey Jensen | Phoenix Business Journal Construction has kicked off for the first phase of a new 4 million-square-foot industrial park in Goodyear called

Photo Courtesy of Boyer Company By Corina Vanek | Arizona Republic A massive development that will include office buildings, restaurants, shops, hotels and large-scale industrial

Photo Courtesy of Terrascape Consulting LLC/City of Prescott By Roland Murphy | AZBEX The Prescott Planning and Zoning Commission had planned a June 8 site plan review

Photo Courtesy of KB Home By Karen Schutte | RED News TUCSON, ARIZONA (June 23, 2023) – KB Home closed on 19.07 acres northeast of

Photo via Linda Williams By Linda Williams | Fox 10 Phoenix PHOENIX – If you’re shopping for a home right now in the Valley, you know it can be

By Mara Knaub | Eloy Sun The Yuma City Council on Wednesday adopted an Economic Incentive Policy, but first removed any reference to retail businesses.

Photo Courtesy of Eloy Arizona By David Church | Eloy Enterprise ELOY — The City Council took the next step in filling a vacant seat

By Buckeye Independent Martens Development, a Scottsdale-based development firm, and its general contracting partner Willmeng Construction broke ground on a Class A industrial development, Mission
Rose Law Group pc values “outrageous client service.” We pride ourselves on hyper-responsiveness to our clients’ needs and an extraordinary record of success in achieving our clients’ goals. We know we get results and our list of outstanding clients speaks to the quality of our work.

By Jakob Thorington | State Affairs The chairman of the Joint Legislative Audit Committee said Monday it may be time to allow the State Land

By Charles Borla , Gabriela Rico | Tucson.com A “middle housing” plan supported by city staffers is set to alter the type of housing that

By Howard Fischer | Arizona Capitol Times Key Points: It probably comes as no surprise, but once again the fastest-growing communities in Arizona are on